秦创原·陕西物联网产业基地

 二维码 352

秦创原·陕西物联网产业基地

物联网产业基地.jpg


高科技产业集聚 创新生态链构建

秦创原·陕西物联网产业基地,是航天实业以秦创原创新动平台为引领、助力“十个航天”战略落地实践的重点项目。

项目位于航天新城东长安街总部经济带上,总占地面积约193亩,总建筑面积约55万m,分为A、B、C三个区域开发,是集生产研发、总部办公于一体的综合产业示范基地。

项目以物联网技术赋能产业转型升级,重点聚焦物联网、大数据与云计算,人工智能、新能源新材料等创新技术产业,全方位打造上中下游产业生态链,让创新成为驱动发展新引擎。

物联网产业1.jpg

航天城芯 产业集聚

区位优势明显

项目屹立航天新城腹地,处于东长安街总部经济带黄金十字,扼守大西安城市发展中轴之上,集政商核心、科教文脉、公园景区于一身,区位优势显著。

周边布局国家超算中心、隆基绿能、京东总部、腾讯智媒体丝路总部、荣耀科技园、未来之芯等龙头企业,围绕人工智能、云计算和大数据等产业发展,营造产业集聚效应。

区域内云集航天四院、航天六院、航天九院等顶尖科研院所等,科研氛围浓厚,高知人群汇聚。

物联网产业2.jpg


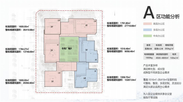
A区 智能研发/生态办公区

总占地面积约52.52亩,总建筑面积约18.56万㎡

4栋高层研发楼、2栋多层研发楼

容积率3.65 建筑密度43.79%

绿化率12.66% 机动车位1410个

产、学、研、用一体的综合性产业发展平台

计划于2023年12月全面竣工

物联网产业3.jpg

物联网产业4.jpg

产品灵动定制

满足多元化需求

采用围合式布局,形成互动化、生活化的园区氛围。首层由中心花园围合而成,集商业、生活服务和配套服务于一体,二层通过室外平台联系,是一层公共空间的延续,实现了地面和二层均可进入建筑的双首层概念,提升交通的便捷性延伸了企业的展示面。

物联网产业5.jpg

高层办公空间灵活多变,可双空间、四空间、六空间划分,满足知名企业品质商务需求。多层办公可整栋、整层或双空间灵活划分,满足头部企品质办公需求,报告厅、共享会议室等,园区配备员工餐厅、便利店、幼儿托管等,可满足员工基本生活需求。


B区总部商务

总占地面积约47.36亩,总建筑面积约17.60万㎡

3栋研发楼、1栋人才公寓

容积率3.84 建筑密度40.16%

绿化率13.06% 机动车位1378个

生态和谐、开放共享的商务范

本计划于2024年6月全面竣工


物联网产业6.jpg

高效绿色办公

星级化商务体验

延续东长安街总部经济氛围,超高绿化率,打造中央公园、下沉广场、阶梯景观,形成更具互动性、生活化的总部生态办公空间。


物联网产业7.jpg

物联网产业8.jpg

物联网产业9.jpg

C区生产研发

总占地面积约93.2亩,总建筑面积约18.90万㎡

4栋高层研发楼、6栋多层研发厂房、1栋人才公寓

容积率2.34机动车位1150个

产城融合的生态花园式现代智慧园区

计划于2024年9月全面竣工。

物联网产业10.jpg物联网产业11.jpg物联网产业12.jpg物联网产业13.jpg物联网产业14.jpg

地址:西安市长安区航天东路与航创路十字西北角


合作电话:18149070180



首页       城市低空        低空链         专家智库          产业IP          产业集群         低空资讯        加入我们        商策网
联系我们:18149070180     15829938837
地址:陕西省西安市曲江新区
扫码关注低空产业圈