浐灞•长安大学科技园

 二维码 29

浐灞•长安大学科技园

打造国家级大学科技园区

长安大学科技园 (1).jpg

科技园为响应国家科教兴国战略,按照国家大学科技园标准,以促进高等学校科技成果产业转化为目标建立的科技园区。科技园秉承“整合资源、构建平台、专业服务、促进转化”的宗旨,以“校政企协同创新、产学研融合发展”为发展思路,依托长安大学优势学科,打造以公路交通、汽车检测、人工智能、健康医药、电子信息、文化创意、新材料及会展经济等产业为方向的高新技术产业基地


【项目位置】

长安大学科技园 (2).jpg

项目地址:西安市未央区广运潭大道

项目距离绕城高速5km,东三环7km,西安北客站12km,咸阳机场35km。临近地铁3号

线、8号线,毗邻港务区,经济技术开发区


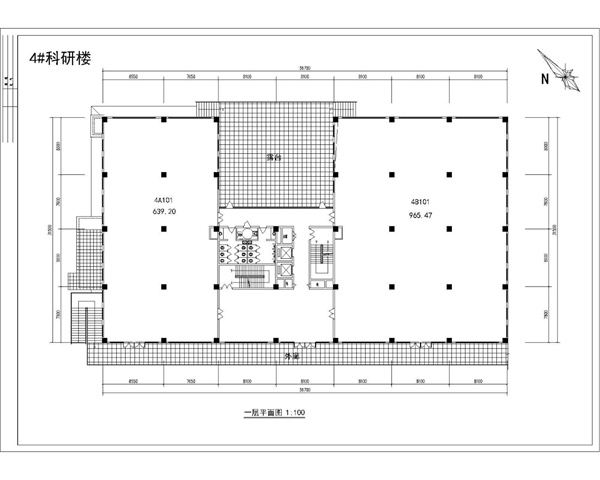
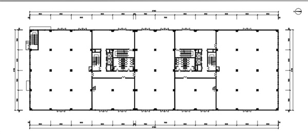
【户型图解】


长安大学科技园 (3).jpg

长安大学科技园 (4).jpg

【房屋形态结构】:框架结构

【房屋规格面积】:单层:630㎡、985㎡

占地面积:62.42亩

总建面:11万㎡

容积率:2.0

地上楼层:6层,地下楼层:1层

停车位:1000个,一期:地下678个,地上74个,共计:752个

配套设施:独立电梯、水电气、餐厅、公寓、酒店


【园区实景图】

长安大学科技园 (5).jpg长安大学科技园 (6).jpg长安大学科技园 (7).jpg长安大学科技园 (11).jpg长安大学科技园 (12).jpg



合作电话:18149070180



首页       城市低空        低空链         专家智库          产业IP          产业集群         低空资讯        加入我们        商策网
联系我们:18149070180     15829938837
地址:陕西省西安市曲江新区
扫码关注低空产业圈